Kostenlose Anfrage starten

3D Scanworks

Aktiv seit 
2009
 | 
Projekte mit Construyo abgeschlossen
Bewertung
Bewertungen
Premium Partner
Der "Premium Partner"-Status zeigt an, dass der Partner eine hohe Anzahl von Projekten mit Construyo abgeschlossen hat und ihre durchschnittliche Bewertung pro Projekt ebenfalls hervorragend ist.
Architekt
Statiker
Bauunternehmer
Energieberater
Vermesser
Baugrundgutacher
Brandschutzingenieur
50829
Köln

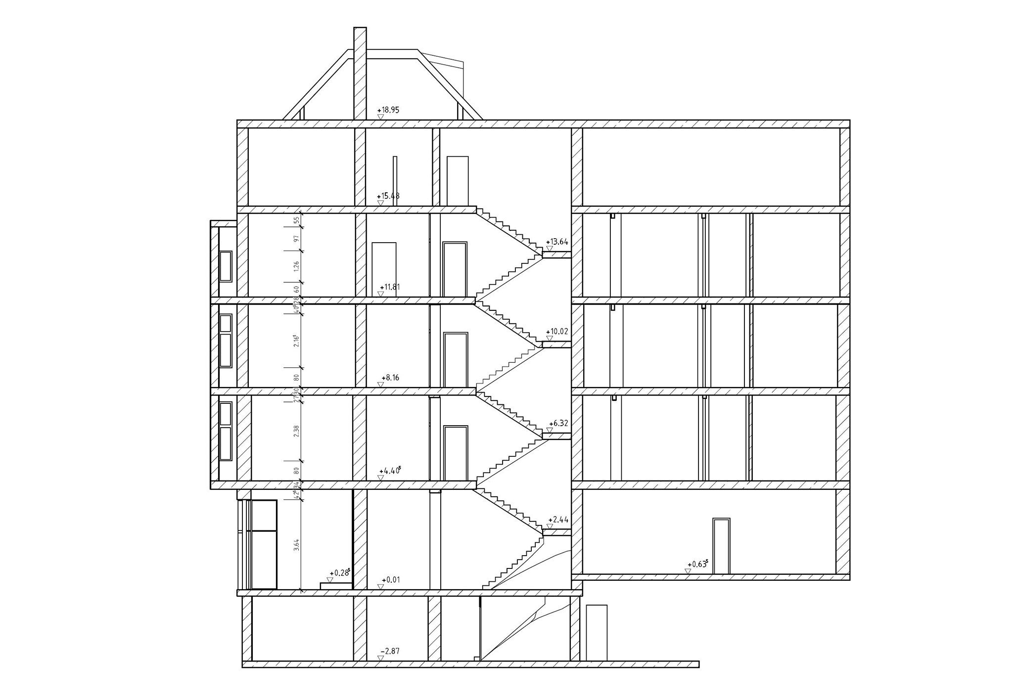
Aufmaß für Wohn- und Gewerbelofts in Köln

50829

Dem Eigentümer lagen bisher nur veraltete 2D-Grundrisse und Schnitte aus den 50er und 60er Jahren vor.

Ziel war es, eine genaue Planungsgrundlage für eine Brandschutzplanung sowie für bauliche Instandsetzungsarbeiten zu erhalten.

Außerdem sollte eine aktuelle Mietflächenberechnung nach DIN 277 erstellt werden.
Gebäudeaufmaß
Altbau, Gründerzeit, Denkmal
2022
9800
€€
€€
€€€
Grundlagenermittlung (LP 1)
Für dieses Projekt gibt es keine Bilder